Helle, renovierte Büroetage mit sehr guter Verkehrsanbindung, Pkw und ÖPNV, 5 Stellplätze!

Büro/Praxis zur Miete in Heidelberg

2.556 €

Miete zzgl. NK
  • 8

    Zimmer
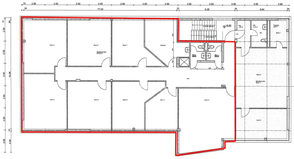
  • 284 m²

    Bürofläche (ca.)
  • 284 m²

    Gesamtfläche (ca.)
  • 1980

    Baujahr

Preise & Kosten

Standort

69115 Heidelberg - Weststadt

Preise
  • Miete zzgl. NK 2.556 €
  • Miete pro m² 9 €
  • Nebenkosten 710 €
  • Heizkosten in NK. enthalten

Die Immobilie

Büro/Praxis zur Miete
  • Objekt-Nr 250047
  • Gäste-WC
  • Provisionspflichtig
Stellflächen
  • Anzahl Stellplätze 5
  • Stellplatzmiete 225 €
  • Stellplatzpreis 0 €
  • Stellplätze 5
Räume und Flure
  • Anzahl separate WCs 2

Ihre Anfrage

Energieverbrauchsausweis

  • Endenergieverbrauch
  • Endenergieverbrauch-Strom 33 kWh/(m²*a)
  • Endenergieverbrauch-Wärme 96 kWh/(m²*a)
  • Wesentlicher Energieträger GAS
  • Energieeffizienzklasse C
  • Gültig bis 26.11.2028