Großzügige Freifläche und Zufahrt! Gebäude beheizt u. klimatisiert! Produktion, Lager und Büro!

Halle/Lager/Produktion zum Kauf in Heidelberg / Rohrbach

2.350.000 €

Kaufpreis
  • 3.309 m²

    Grundstück (ca.)
  • 2.014 m²

    Gesamtfläche (ca.)
  • 1983

    Baujahr

Preise & Kosten

Standort

Englerstraße 23, 69126 Heidelberg / Rohrbach - Rohrbach

Preise
  • Kaufpreis 2.350.000 €
Käuferprovision
5,95 % inkl. MwSt.

Die Immobilie

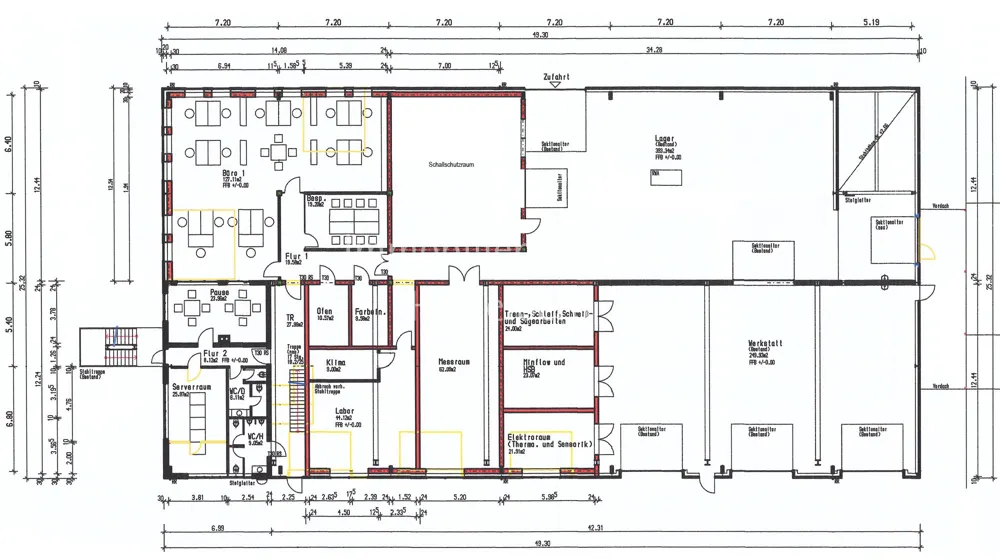
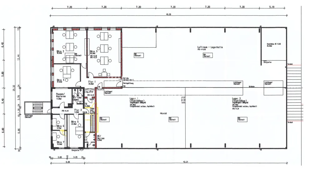
Halle/Lager/Produktion zum Kauf
  • Objekt-Nr 250060
  • Unterkellert teilweise
Weitere Flächen
  • Lagerfläche (ca.) 950 m²

Ihre Anfrage

Energieverbrauchsausweis

  • Endenergieverbrauch
  • Endenergieverbrauch-Strom 46,90 kWh/(m²*a)
  • Endenergieverbrauch-Wärme 53,80 kWh/(m²*a)
  • Wesentlicher Energieträger GAS
  • Gültig bis 27.12.2035